Vai al contenuto
  • Vendita

Porzione bifamiliare a santa maria nuova bertinoro

Bertinoro - via Santa Croce

€ 163.000

146 Mq

In esclusiva proponiamo in vendita una porzione di bifamiliare in buono stato situata a Santa Maria Nuova di Bertinoro, in posizione strategica e vicina a tutti i principali servizi.
L'abitazione si apre su un ingresso che conduce a un grazioso soggiorno arricchito da un funzionale angolo bar, un cucinotto separato e un pratico ripostiglio.
Salendo al piano superiore, la zona notte è composta da un disimpegno, due ampie camere da letto matrimoniali e un bagno finestrato dotato di doccia.
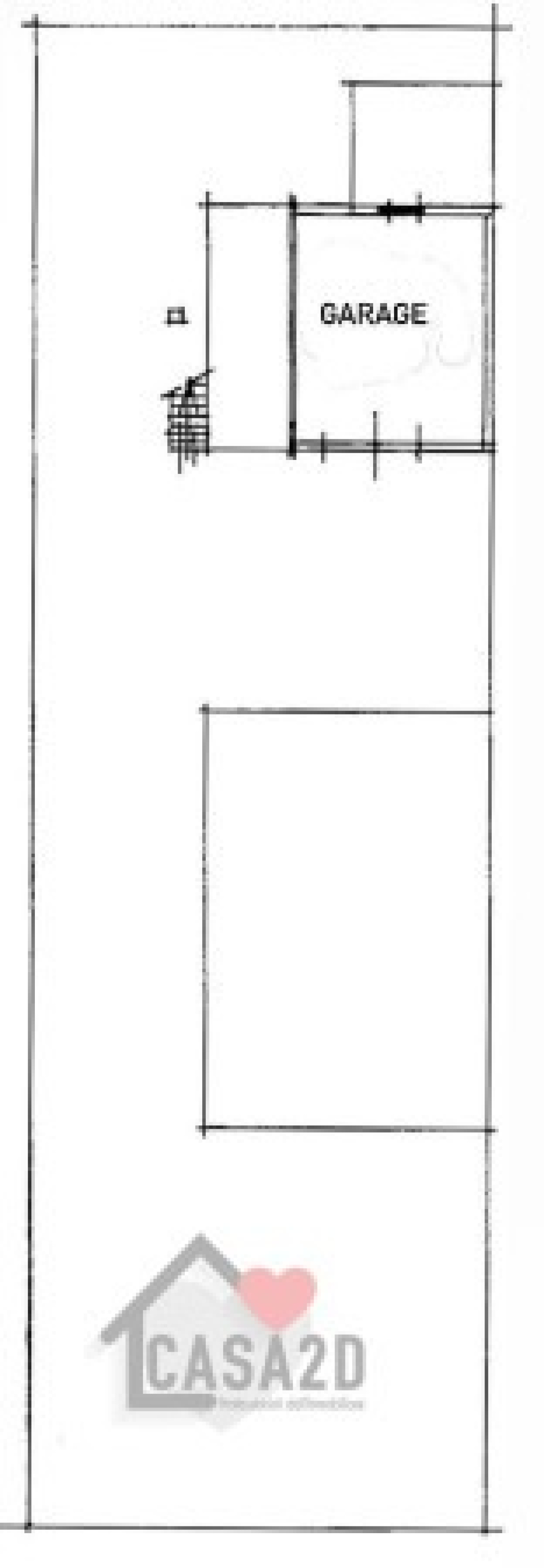
La proprietà comprende diverse pertinenze: al piano terra troviamo un garage con accesso diretto dall'interno dell'immobile, mentre in un corpo distaccato adiacente sono presenti un secondo garage e un ripostiglio ad uso lavanderia.
Sempre in questo fabbricato troviamo un locale ad uso pollaio e, al primo piano, un ulteriore ampio ripostiglio accessibile tramite scala esterna.
Completa la soluzione una corte privata con giardino di circa 240 mq, che circonda l'abitazione garantendo indipendenza e ampi sfoghi esterni in un contesto residenziale curato e professionale.
Le presenti informazioni non costituiscono elemento contrattuale.

INFO: 324 8886304
Agente Enrico Togni: 391 4919921 [email protected] www.casa2d.it

Dettaglio

Tipologia

Villa

Stato

Libero

Riscaldamento

Autonomo

MQ

146

Camere

2

Bagni

1

Altre caratteristiche

ID Annuncio
SMN163
Prezzo
€ 163.000
Nr.locali
4
Piani Edificio
2
Nr.altre camere
2
Nr.bagni
1
Cucina
Cucinino
Box auto
Doppio
Arredamento
Parziale
Anno costruzione
1960
Stato Manutenzione
Buono
Stato Costruzione
Buono
Infissi esterni
Vetro/legno
Classe Energetica
G

Servizi

  • Giardino Privato
  • Cantina

Planimetrie

Video

Enrico Togni
Enrico Togni Agente

Per ulteriori informazioni sui nostri servizi, mettiti in contatto con i nostri consulenti esperti

Siamo a tua disposizione

+39 324 88.86.304

Chiamaci