Vai al contenuto
  • Vendita

Terracielo tra mare e città – villa casone

Cesena

€ 255.000

120 Mq

Nella frazione di Villa Casone, alle porte di Ponte Pietra, in posizione strategica a metà strada tra il mare e la città, proponiamo in vendita un caratteristico terracielo che conserva il fascino delle abitazioni di una volta.
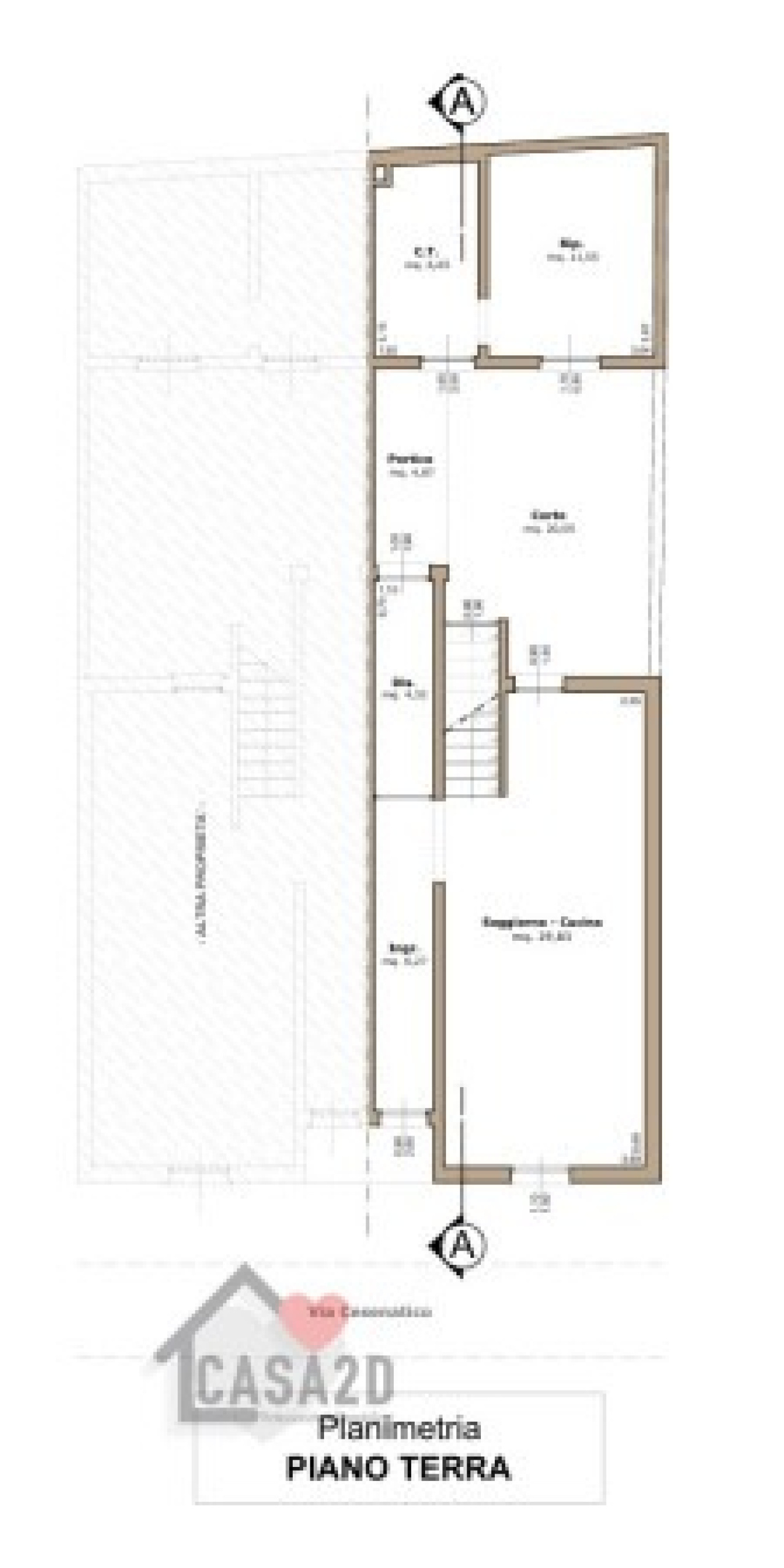
L’accesso al piano terra avviene tramite portone blindato, che conduce a un’ampia e accogliente zona giorno con cucina a vista e soggiorno.
Un comodo disimpegno permette l’uscita su una corte privata pavimentata, ideale per pranzi e cene all’aperto, godendo della tranquillità della zona.
Adiacenti alla corte troviamo una grande cantina seminterrata e un locale al piano terra, dove è possibile ricavare un bagno e una piccola cucina di servizio.
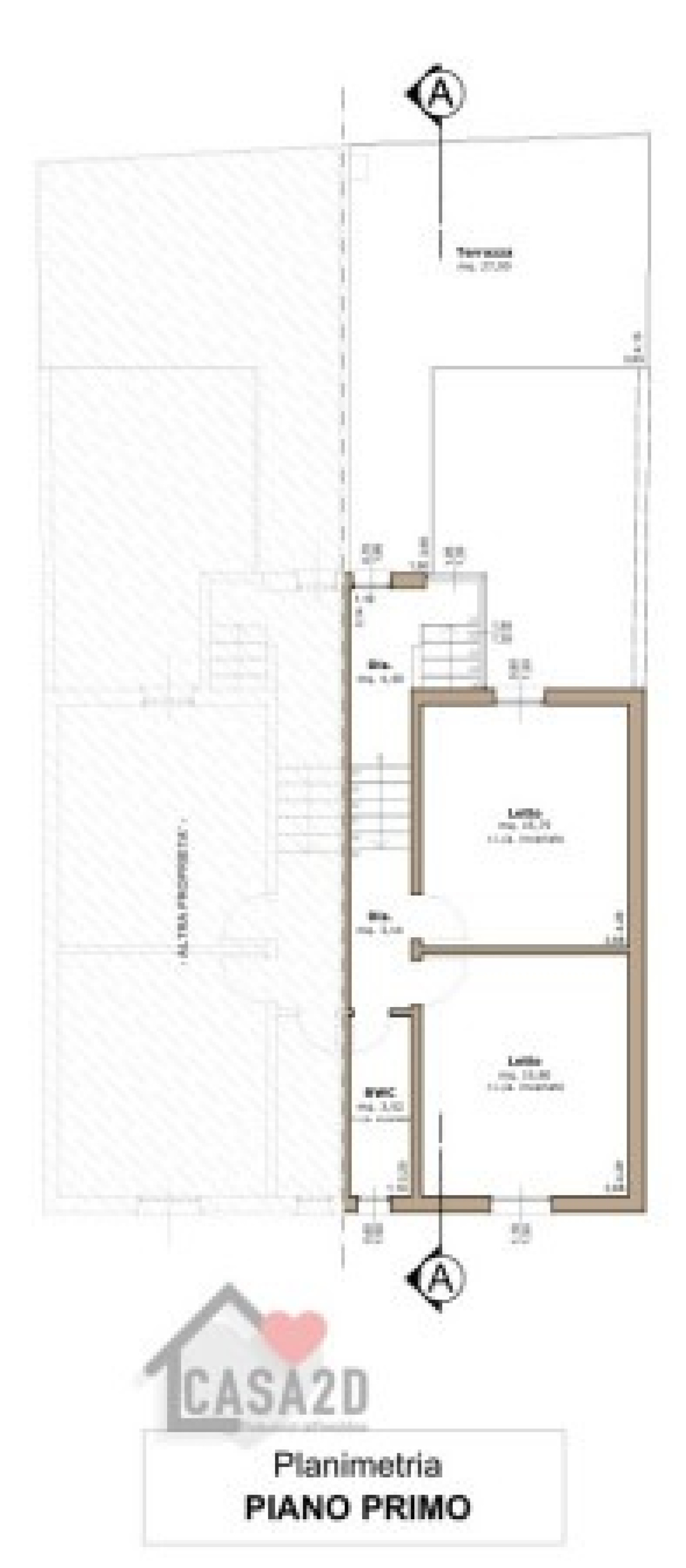
Salendo al primo piano, tramite scala interna, si accede alla zona notte composta da due camere matrimoniali di generose metrature, un bagno e uno splendido terrazzo di circa 25 mq con affaccio aperto sulle campagne circostanti.
Completa la proprietà un posto auto fronte casa.
Ristrutturazione 2014, durante la quale sono stati eseguiti i seguenti interventi:
- rifacimento facciata esterna
- pavimenti interni
- caldaia e climatizzazione
- impianto elettrico certificato
- impianto idraulico in rame
- infissi in legno con doppio vetro
- scuroni in alluminio
- impianto di allarme volumetrico Soluzione ideale per chi cerca indipendenza, spazi esterni e tranquillità, senza rinunciare alla comodità dei collegamenti.

INFO 324 8886304
Agente Enrico Togni Consulente Tommaso Soprano 339 2927775 [email protected] www.casa2d.it

Dettaglio

Tipologia

Casa indipendente

Stato

Libero

Riscaldamento

Autonomo

MQ

120

Camere

2

Bagni

1

Posti auto

1

Altre caratteristiche

ID Annuncio
MACERONE
Prezzo
€ 255.000
Nr.locali
4
Piani Edificio
1
Nr.altre camere
2
Nr.bagni
1
Cucina
Angolo cottura
Box auto
Assente
Arredamento
Parziale
Anno costruzione
1950
Stato Manutenzione
Buono
Stato Costruzione
Buono
Infissi esterni
Doppio vetro/legno
Classe Energetica
G
Nr.Terrazzi
1

Servizi

  • Posto auto
  • Giardino Privato
  • Cantina

Planimetrie

Enrico Togni
Enrico Togni Agente

Per ulteriori informazioni sui nostri servizi, mettiti in contatto con i nostri consulenti esperti

Siamo a tua disposizione

+39 324 88.86.304

Chiamaci