Vai al contenuto
  • Vendita

Villa bifamiliare con giardino

Bertinoro - via Santa Croce

€ 560.000

415 Mq

SANTA MARIA NUOVA Nel centro di Santa Maria Nuova di Bertinoro proponiamo villa bifamiliare in ottimo stato, ideale per due nuclei familiari.
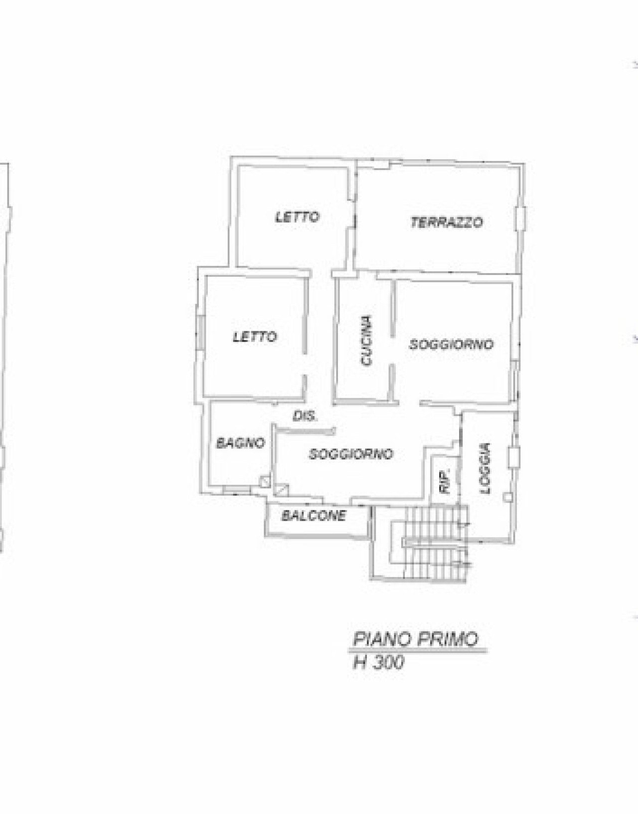
L’immobile è composto da due unità abitative indipendenti, una al piano rialzato e una al primo piano, entrambe con identica disposizione interna.
Al piano rialzato l’ingresso avviene tramite loggia che conduce direttamente al soggiorno con camino e balcone, la zona giorno è completata da una sala da pranzo separata e da un cucinotto, la zona notte comprende due camere matrimoniali, un bagno e un terrazzo in loggia di circa 28 mq, con accesso sia dal cucinotto sia da una delle camere da letto.
Al primo piano è presente un secondo appartamento con la stessa distribuzione degli spazi.
Al piano seminterrato si trovano tutti i servizi suddivisi in più stanze con due accessi separati.
In corpo distaccato ma collegato all’abitazione tramite portico troviamo un garage triplo e una tavernetta di circa 50 mq con camino, l’immobile è circondato da oltre 600 mq di area esterna privata composta in parte da corte pavimentata con possibilità di parcheggiare più autovetture e nella restante parte adibita a giardino e orto, il tutto in posizione centrale e comoda a tutti i principali servizi.
Possibilità di acquistare una singola porzione della villa bifamiliare.
Le presenti informazioni non costituiscono elemento contrattuale.
INFO 324 8886304
Agente Enrico Togni 391 4919921 [email protected] www.casa2d.it

Dettaglio

Tipologia

Villa

Stato

Riscaldamento

Autonomo

MQ

415

Camere

4

Bagni

3

Altre caratteristiche

ID Annuncio
SMN560
Prezzo
€ 560.000
Nr.locali
10
Piani Edificio
3
Nr.altre camere
6
Nr.bagni
3
Cucina
Cucinino
Box auto
Doppio
Arredamento
Completo
Anno costruzione
1970
Stato Manutenzione
Ottimo
Stato Costruzione
Ottimo
Infissi esterni
Doppio vetro/metallo
Nr.Terrazzi
1

Servizi

  • Balcone
  • Giardino Privato
  • Cantina

Planimetrie

Video

Enrico Togni
Enrico Togni Agente

Per ulteriori informazioni sui nostri servizi, mettiti in contatto con i nostri consulenti esperti

Siamo a tua disposizione

+39 324 88.86.304

Chiamaci