Vai al contenuto
  • Vendita

Villetta a cesena (fc)

Cesena - via San Mauro

€ 599.000

238 Mq

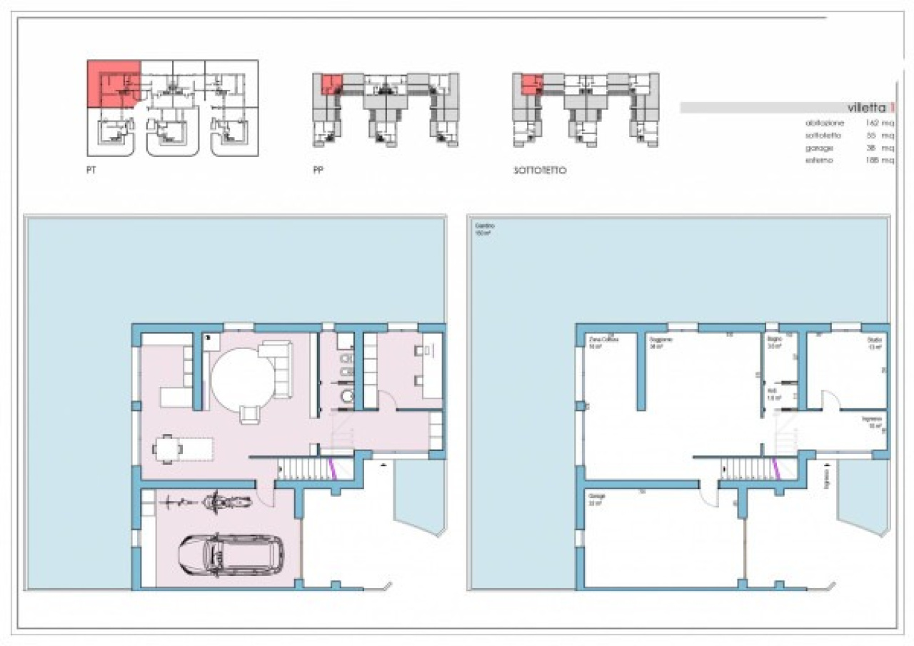
A due passi da Cesena e Bertinoro, proponiamo Villetta di nuova costruzione che verrà ultimata con Ottime rifinuture e Caratteristiche di Alto Risparmio Energetico.
La villetta è così composta: PIANO TERRA uno spazioso Soggiorno con Cucina da 50mq, uno studio da 13mq, bagno e Garage da 32mq.
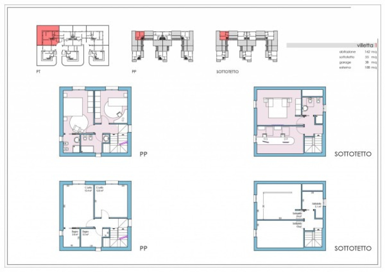
PRIMO PIANO: Due camere da letto di cui una matrimoniale e Due bagni.
PIANO MANSARDATO: un'altra camera da letto matrimoniale con bagno e un'ampio studio.
Completano questa unità, 188 mq di giardino.
Finiture e Caratteristiche Costruttive: bioedilizia
- riscaldamento a pavimento con pompa di calore
- Fotovoltaico e accumolo con batterie.

Possibilità di personalizzare la villetta.
I prezzi indicati non sono definitivi.
Si dispone di altre villette con metrature diverse.
Le presenti informazioni non costituiscono elemento contrattuale Per info 324.8886304
Agente Enrico Togni 391 4919921
Email: [email protected]
Sito: www.casa2d.it Possibilità di vendita anche al grezzo.

Dettaglio

Tipologia

Villa

Stato

Libero

Anno

2024

Riscaldamento

Autonomo

MQ

238

Camere

3

Bagni

4

Posti auto

1

Altre caratteristiche

ID Annuncio
1settecrociari
Prezzo
€ 599.000
Nr.locali
6
Piani Edificio
4
Nr.altre camere
3
Nr.bagni
4
Cucina
Abitabile
Box auto
Singolo
Arredamento
Assente
Anno costruzione
2024
Stato Manutenzione
Ottimo
Stato Costruzione
Ottimo
Classe Energetica
A

Servizi

  • Posto auto
  • Mansarda
  • Giardino Privato

Planimetrie

Video

Enrico Togni
Enrico Togni Agente

Per ulteriori informazioni sui nostri servizi, mettiti in contatto con i nostri consulenti esperti

Siamo a tua disposizione

+39 324 88.86.304

Chiamaci