Vai al contenuto
  • Vendita

Villetta a schiera 8

Montescudo-Monte Colombo - via Torniano

€ 215.000

155 Mq

MONTESCUDO Nuovo complesso di 8 villette a schiera con ingresso indipendente.
Questa villetta è una delle proposte del complesso con spazi accoglienti e finiture moderne.
ULTIMA villetta ad Angolo e si sviluppa su tre piani fuori terra ed uno interrato.
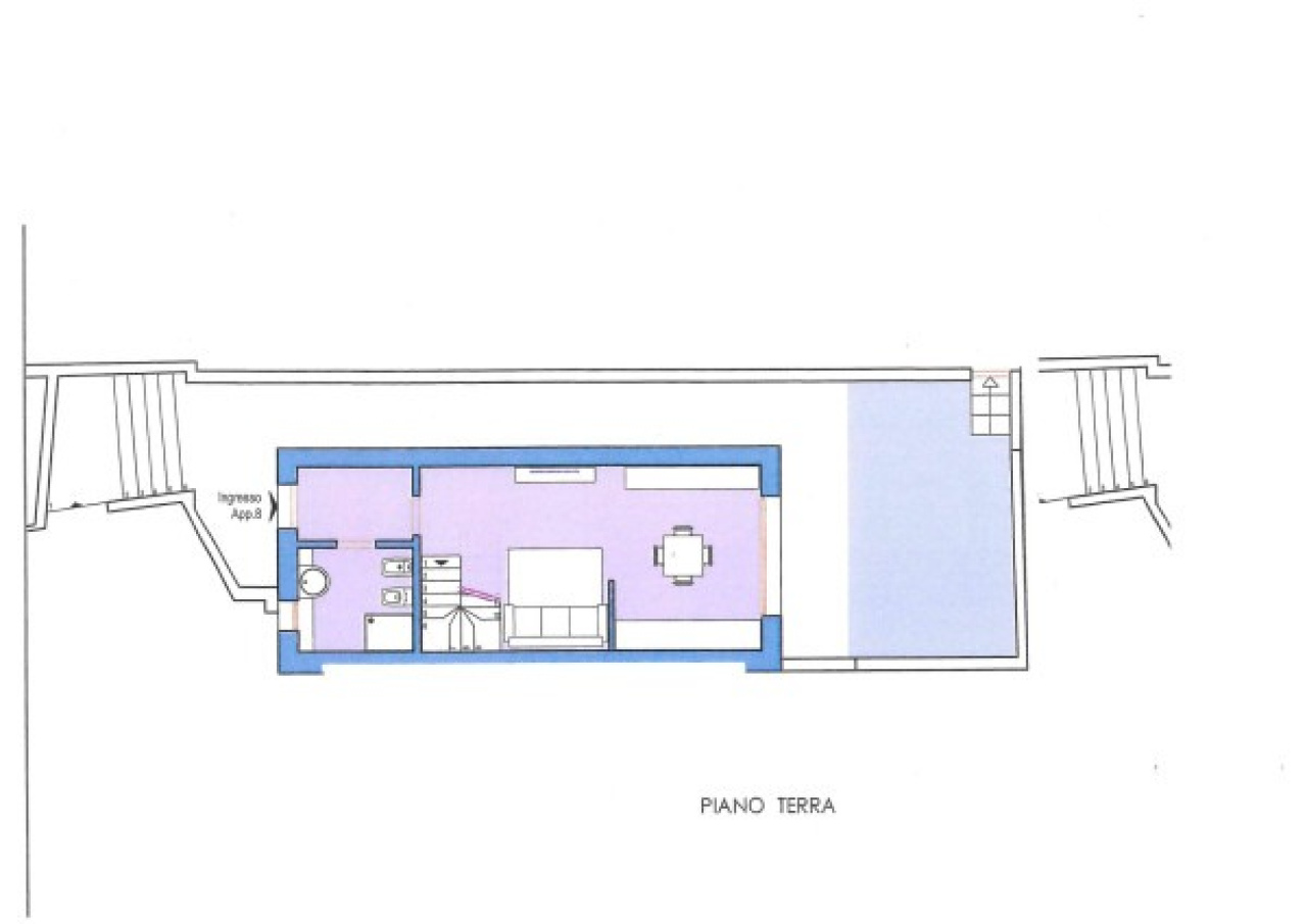
Al Piano Terra si accede da una corte privata dove troviamo l'ingresso con disimpegno, bagno e una zona giorno open space, dove si accede al giardino privato e corte privata.
Al Primo Piano troviamo Due camere da letto di cui una Matrimoniale, un bagno e un balcone.
Al Piano Mansardato troviamo una un'altra stanza e bagno.
Al Piano interrato troviamo un ampio garage di circa 30 mq e un Due Posti Auto Esterni.
Questa è un'occasione unica per coloro che desiderano vivere in una zona tranquilla, ma ben collegata alle principali attrazioni della zona.
Classe energetica B, con possibilità di mutuo agevolato Green L'acquisto è soggetto ad IVA sul prezzo di acquisto: 4% prima casa / 10% seconda casa.
Agevolazione Mutuo Convenzionato con Credem Banca
- Referente: Elisabetta Serra 353 4223539.

Per maggiori informazioni o per prenotare una visita, non esitare a contattarci.
Le presenti informazioni non costituiscono elemento contrattuale.
Per info 324.8886304
Agente Enrico Togni 391 4919921
Email: [email protected]
Sito: www.casa2d.it

Dettaglio

Tipologia

Villa a Schiera

Stato

Libero

Anno

2022

Riscaldamento

Autonomo

MQ

155

Camere

2

Bagni

3

Posti auto

2

Altre caratteristiche

ID Annuncio
MONTESCUDO 8
Prezzo
€ 215.000
Nr.locali
4
Piani Edificio
3
Nr.altre camere
2
Nr.bagni
3
Cucina
Angolo cottura
Box auto
Singolo
Arredamento
Assente
Anno costruzione
2022
Stato Manutenzione
Nuovo
Stato Costruzione
Nuovo
Classe Energetica
B

Servizi

  • Balcone
  • Posto auto
  • Mansarda
  • Giardino Privato

Planimetrie

Enrico Togni
Enrico Togni Agente

Per ulteriori informazioni sui nostri servizi, mettiti in contatto con i nostri consulenti esperti

Siamo a tua disposizione

+39 324 88.86.304

Chiamaci