Vai al contenuto
  • Vendita

Villetta con ingresso indipendente e giardino

Cesena

€ 613.000

209 Mq

CESENA IN ZONA CENTRALE Proponiamo in vendita villetta a schiera di nuova costruzione, situata in zona comoda e ben servita, vicina a tutti i principali servizi.
L’abitazione è così composta: Piano terra Ingresso tramite giardino frontale con accesso diretto al soggiorno con cucina a vista in open space di circa 46 mq, ambiente ampio e luminoso.
Completano il piano antibagno, bagno e ripostiglio.
Dalla cucina si accede al giardinetto sul retro, ideale per momenti di relax all’aperto.
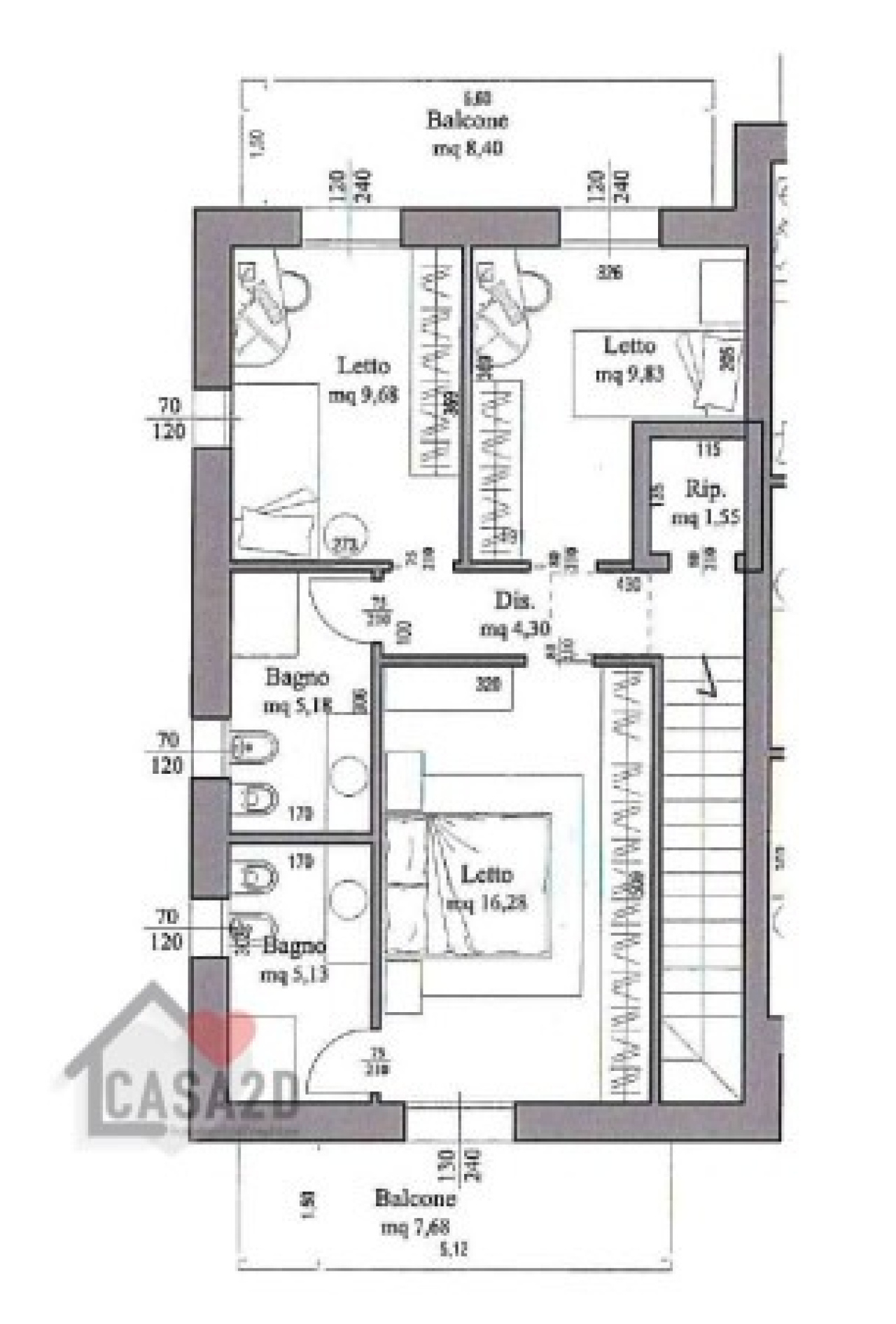
Primo piano Attraverso disimpegno si accede alla zona notte composta da:
- Camera matrimoniale con bagno privato e balcone
- Due camerette, entrambe con balcone
- Secondo bagno Piano interrato Collegato da una scala interna troviamo un'ampio garage di circa 47 mq, oltre a bagno e ripostiglio, perfetti come spazi accessori e di servizio.

Dotazioni e caratteristiche tecniche L’immobile sarà realizzato con tecnologie di ultima generazione per garantire comfort ed efficienza energetica: Riscaldamento a pavimento con pompa di calore Impianto fotovoltaico Ventilazione Meccanica Controllata (VMC) Aria condizionata Aspirazione centralizzata Impianto di allarme Predisposizione per eventuale piattaforma elevatrice Soluzione ideale per famiglie che cercano una casa moderna, funzionale e ad alto risparmio energetico, con spazi ben distribuiti e comfort abitativo elevato.
Consegna prevista per Giugno 2028.
L'immobile è soggetto sul prezzo di acquisto 4% prima casa/ 10% seconda casa.
Rendering a scopo illustrativo.
Le immagini sono indicative e non costituiscono elemento contrattuale.
INFO 324 8886304
Agente Enrico Togni 391 4919921 [email protected] www.casa2d.it

Dettaglio

Tipologia

Villa a Schiera

Stato

Libero

Anno

2028

Riscaldamento

Autonomo

MQ

209

Camere

3

Bagni

3

Altre caratteristiche

ID Annuncio
CESENA
Prezzo
€ 613.000
Nr.locali
4
Piani Edificio
3
Nr.altre camere
1
Nr.bagni
3
Cucina
Angolo cottura
Box auto
Doppio
Arredamento
Assente
Anno costruzione
2028
Stato Manutenzione
Nuovo
Stato Costruzione
Nuovo
Classe Energetica
A4

Servizi

  • Balcone
  • Giardino Privato

Planimetrie

Enrico Togni
Enrico Togni Agente

Per ulteriori informazioni sui nostri servizi, mettiti in contatto con i nostri consulenti esperti

Siamo a tua disposizione

+39 324 88.86.304

Chiamaci