Vai al contenuto
  • Vendita

Villetta di pregio

Cesena - via San Mauro

€ 505.000

210 Mq

A due passi da Cesena e Bertinoro, proponiamo Villetta per clientela esclusiva di nuova costruzione che verrà ultimata con Ottime rifinuture e Caratteristiche di Alto Risparmio Energetico.
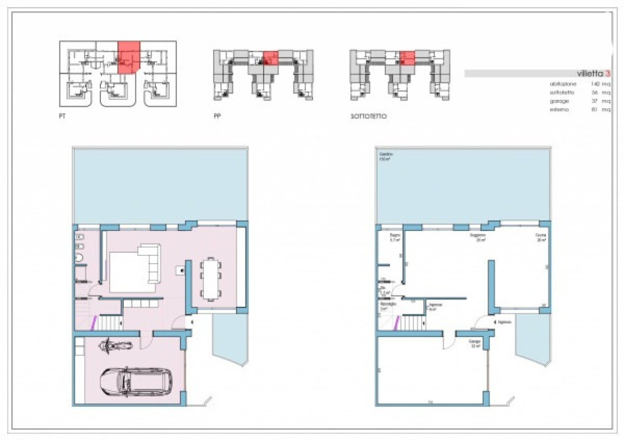
La villetta è così composta: PIANO TERRA Ingresso con guardaroba dove si accede ad uno spazioso Soggiorno con Cucina da 50mq, bagno e Garage da 32mq.
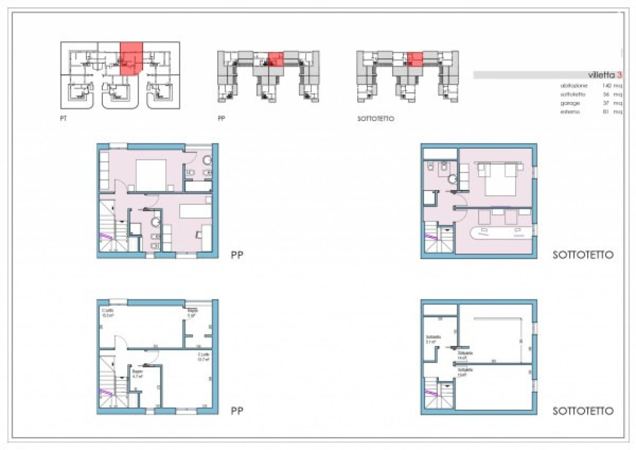
PRIMO PIANO: Due camere da letto matrimoniali, un bagno, cabina armadio.
PIANO MANSARDATO: un'altra camera da letto matrimoniale con bagno e un'ampio studio.
Completano questa unità, 81 mq di giardino.
Finiture e Caratteristiche Costruttive: bioedilizia
- riscaldamento a pavimento con pompa di calore
- Fotovoltaico e accumolo con batterie.

Possibilità di personalizzare la villetta.
Possibilità di vendita allo stato grezzo.
Si dispone di altre villette con metrature diverse.
I prezzi indicati non sono definitivi.
Chiamaci per maggiori informazioni.
Le presenti informazioni non costituiscono elemento contrattuale Per info 324.8886304
Agente Enrico Togni 391 4919921
Email: [email protected]
Sito: www.casa2d.it

Dettaglio

Tipologia

Villa

Stato

Libero

Riscaldamento

Autonomo

MQ

210

Camere

3

Bagni

3

Posti auto

1

Altre caratteristiche

ID Annuncio
3settecrociari
Prezzo
€ 505.000
Nr.locali
7
Piani Edificio
3
Nr.altre camere
4
Nr.bagni
3
Cucina
Abitabile
Box auto
Doppio
Arredamento
Assente
Stato Manutenzione
Nuovo
Stato Costruzione
Nuovo
Classe Energetica
A

Servizi

  • Posto auto
  • Mansarda
  • Giardino Privato

Planimetrie

Video

Enrico Togni
Enrico Togni Agente

Per ulteriori informazioni sui nostri servizi, mettiti in contatto con i nostri consulenti esperti

Siamo a tua disposizione

+39 324 88.86.304

Chiamaci